PROPERTY INFO
物件情報詳細

アクアプレイス京都千本丸太町

世界遺産を載く、由緒正しき都の記憶。

徳川家康が築城し、徳川慶喜の大政奉還の舞台となった世界遺産「二条城」の傍らに控える
由緒正しき歴史を継ぐ地に、古都の誇りが宿ります。

物件名
アクアプレイス京都千本丸太町
所在地
京都市上京区下立売通七本松東入長門町413番6
交通
JR山陽本線・京都市営地下鉄東西線「二条」駅 徒歩15分
用途地域
第一種住居地域
地域・地区
準防火地域、15m第2種高度地区、旧市街地型美観地区、遠景デザイン保全区域、屋外広告物第3種地域、居住誘導区域、宅地造成等工事規制区域、既成都市区域、埋蔵文化財包蔵地(重要遺跡:平安京跡)
地目
宅地
建ぺい率
68.73%(法定建ぺい率70%)
容積率
199.74%(法定容積率200%)
敷地面積
612.77㎡
建築面積
420.64㎡
建築延床面積
1625.32㎡
構造・規模
鉄筋コンクリート造 地上5階建
総戸数
40戸
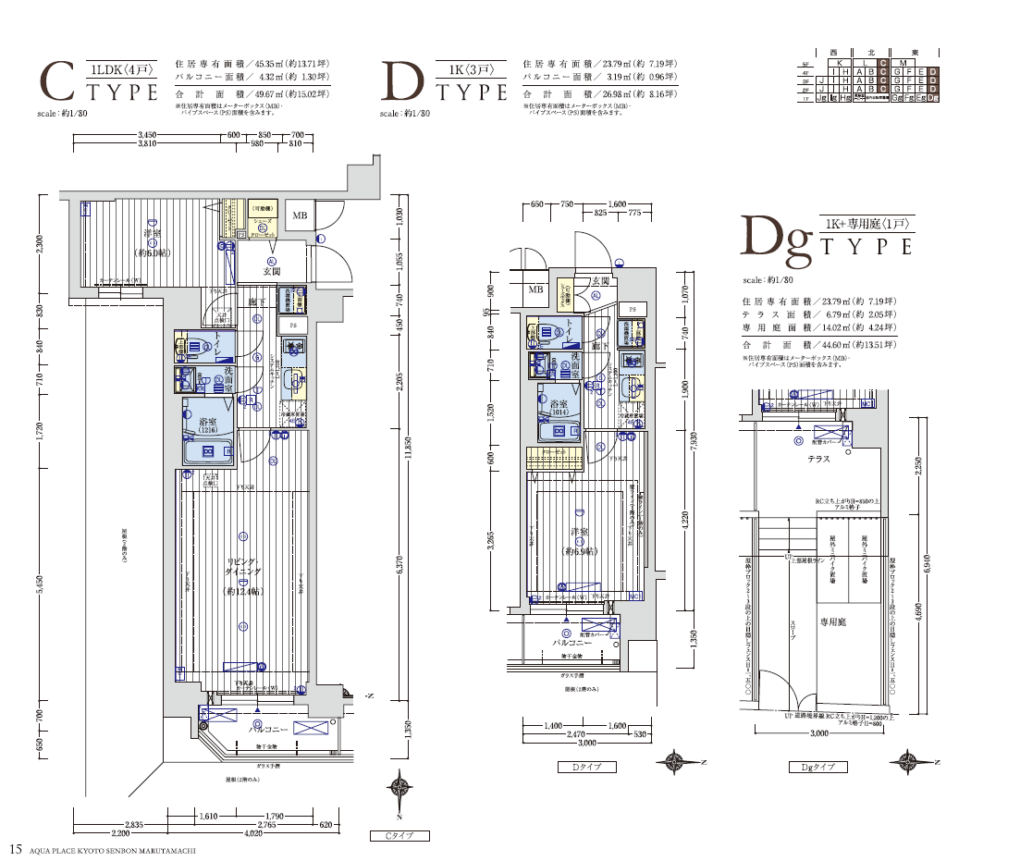
専有面積
22.50㎡~64.47㎡
バルコニー面積
3.19㎡~8.32㎡
間取り
1Room・1K・1K+専用庭・1DK・1DK+専用庭・2LDK
分譲後の権利形態
敷地:専有面積持分比率による所有権の共有、建物:区分所有
建築確認番号
第2025確認建築京機構市00076号
竣工
令和8年3月
施工
株式会社夢咲工務店
管理会社
株式会社レビアサービス
管理形態
区分所有者全員で管理組合を設立し、管理組合より管理受託者へ委託

マリアスの販売物件のご紹介

イメージ

不動産投資の事なら弊社の
プロスタッフが対応させて頂きます。

06-6226-7900【受付時間】9:30~18:00

資料請求はこちら
MAILFORM

オーナー様専用
資産管理ページ

ご相談・ご質問などお気軽にお問い合わせください。